广东装配式建筑分会 2021-06-07 3986
深圳医学科学院落户于坪山区,项目为中建科技EPC总承包服务设计施工一体化项目,位于深圳市坪山区创新广场,地理位置优越且拥有视野极佳的临山景观。项目采用装配式技术体系,打造专属的办公室内装饰装修解决方案,仅用45天工期,顺利交付2000平米的全新办公室,不仅确保了时尚简约、精致的设计理念,同时在功能上兼顾美观与实用,成功打造出开放、灵活、舒适、便利、安全的办公室体验。
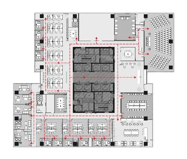
我们根据不同空间的需求进行功能性合理划分,动静分离,办公与会议相对区分,西南侧为办公区,景观资源在视觉的角度调适员工工作时间过长带来倦怠感;东北面侧重共享与休闲功能,包含会议、展示接待、独立休闲、水吧等,是兼具安静和人文关怀场所。
▲ 功能分析图
▲ 动线分析图
01.门面担当--前台接待区
前台是公司的门面,承担着公司对外第一印象的重任。本案前台采用极简的俄罗斯方块叠加组合,选用天然的石纹肌理,搭配白色亚克力背景和木纹墙面,赋予空间大胆的想象,丰富空间层次同时注重视觉感官体验。点线面的交织,在设计师的材料搭配与层叠构型设计中,拼接出凹凸有致立体形态鲜明,简约而不失精美剔透之美。
▼ 前厅接待区
▼ 走廊
02.高效待客--贵宾接待室
走进高级别贵宾接待室,头等舱式的时尚的座椅,亮丽的蓝灰色石纹背景屏风与柔性的蓝灰色水波纹毛毡地毯搭配,营造出轻松的氛围,打造舒适精致的会谈空间。
▼ 贵宾接待室
▼接待室
03.高效议事--大中小搭配的会议室
空间内零星分散小型会议、大型会议、组合会议、视频会议等不同等级的会议室及会议系统。
大会议室兼党员活动室以柔和清新的纯白吊顶与细腻原木的墙板饰面为空间铺上一层温润基底,搭配装配式内装工艺细腻品质带来的舒适,让会议空间具有轻松感和实用功能并重,可以随时进行交谈议事或头脑风暴,会议效率直线提升。
▼大会议室
另外三间个性独立的小型会议室兼具多样体验和灵活运用,非常适合团队之间的沟通、讨论,墙面采用玻镁吸音板的装配式内装,隔音系统能够保证会议室的安静和深度思考,激烈讨论都不会影响其他员工。
▼小会议室/讨论室
报告厅是企业重要的大型场所,对内举行大型会议或者培训讲座,对外举行新闻发布会,行业高峰论坛。本案报告厅采用装配式内装吸音隔音材料,顶面采用具备吸音功能的穿孔装配版吊顶和木色玻镁吸音板,美观与功能兼顾,避免了大空间的产生的回声杂音,同时也展现的报告厅的颜值。
▼多功能报告厅
04.第三空间--多功能休闲区
我们生活在一个需要社交空间的时代,为了平衡“理性工作”与“感性生活”两个???,我们丰富了书吧、茶水间的功能,将其变为一个过渡于书吧与工作之间的“活力充电站”。这里作为休息时员工之间相互学习、情感交流的场所;这里的布局充斥着随意分布的“群落感”,使员工能在放松状下自然停留、聚集互动,“围坐”的形式洋溢着干净温暖的人情味。
▼茶水/吧台区
▼ 自助吧台
05.一体化办公--开敞办公区
开放办公区的光照采用线性光源与落地窗的通透感相辅相成。这一设计有效避免了原本只有3.4米的层高带来的空间的压抑感,并保留了大空间延伸出的视野开阔性。
沿着空间轮廓及内部流线,我们将绿植渗透至每个角落,绿景弥散平衡了其中的硬朗感,增添空间情韵同时营造出深入“室内园林”的景观效果。
办公的核心设计,是要进行恰到好处的“留白”。在为数不多的色彩与装潢中,在打破局限、创建趣味与高效的同时,予人以“放空”。即使身处钢筋水泥的城堡,也可回归“灵性与人性”的和谐。
▼开敞办公区
06.一体化办公--独立办公室
为高层领导级别配置的独立办公室兼具办公、会客功能,作为办公桌的背景墙,墙面配置了的收纳柜,隐蔽与开放式兼具,方便存放私人物品和展示部门荣誉奖项等,房间内设置了洗手池,布纹鲁班万能墙板与石纹SPC板的交互,增添了空间的丰富性,诠释了装配式内装材料应用的广泛性。
▼ 领导办公室
空间的艺术来源于恰到好处,办公空间无非是待客、会议、办公、茶饮休憩;设计师尝试颠覆传统设计思维,在空间上做减法,删除所有冗杂,发挥空间的使用价值;强调“人与自然”“人与空间”的情感交互,城市与自然共生,给予源源不断的灵感。
采用装配式内装技术不仅可以充分解决高效装修,尽快投入使用的问题,还可以解决以往传统装修工人的手艺问题。同时装配式内装技术体系与产品体系可以从源头顶层设计解决装修环保安全的问题,这是技术变革带来的转变,得益于装修底层逻辑和工艺工法的变革。
▼ 细部
装配式墙板施工工法
装配式产品优势
装配式装修系统实现了工厂化、智能化的加工,少规格,多组合,最大程度避免了误差和手工劳动,极大地降低了后期维修率。标准化、模块化的开放式内装结构体系,满足了不同层面用户的个性化需求;无醛环保材料更是锦上添花,减少工业垃圾产生,提高使用率,加速转化率;高精度生产加工流程及标准化装配施工工艺,缩短建造周期,全程优化内装体系。
本项目施工工期
项目名称:深圳医学科学院(筹)办公场所
项目面积:1962.5㎡
项目地址:深圳市坪山区坪山大道2007号创新广场A座13层
项目类型:企业总部办公室
服务内容:EPC总承包服务设计施工一体化
施工时间:45天
施工单位:中建科技集团有限公司深圳分公司
方案设计:郝儒、黄占专
深化设计:陈鹤鸣、李磊、肖新帅、胡越洋
主要材料:乳胶漆、铝材、玻璃、大理石、鲁班万能墙板、PVC装饰膜、玻镁吸音板、穿孔装配板、进口树脂地胶、地毯、SPC板
装配式内装应用:隔墙系统、墙饰面系统、集成吊顶系统
下一资讯:荣誉上榜丨省建材行业“2020年度守合同重信用”企业第一批名单出炉
荣誉上榜丨省建材行业“2020年度守合同重信用”企业第一批名单出炉 (2021-06-07)
广东钢材5月份市场分析及6月份预测 (2021-06-16)
项目介绍丨华南理工大学项目:高标准化和双向板支座处不出筋技术 (2021-06-16)
行业资讯丨装配式装修酒店市场分析和精装房市场分析 (2021-05-31)
行业资讯丨广东深圳绿色建筑发展按下“快进键” (2021-05-21)
技术推介丨375.5米!广商中心项目刷新在建全国最高纯钢结构建筑记录 (2021-05-21)
