广东装配式建筑分会 2022-01-21 3845
11月26日,白云机场三期扩建工程安置区首批样板社区正式开放,回迁村民们首次见到了未来幸福家园的模样。广州市住房城乡建设局党组成员、副局长齐怀恩,花都区委常委、常务副区长姚汉钟,花都区委常委、区委宣传部部长、新华街党工委书记李慧容,花都区人大常委会副主任全泰源,花都区政协党组成员、副主席卢日新,广州机场建投集团党委书记、董事长周铁峰,中建四局副总经理、总经济师梁丁松以及市住房城乡建设局相关处室、花都区相关单位、回迁村民代表出席仪式。
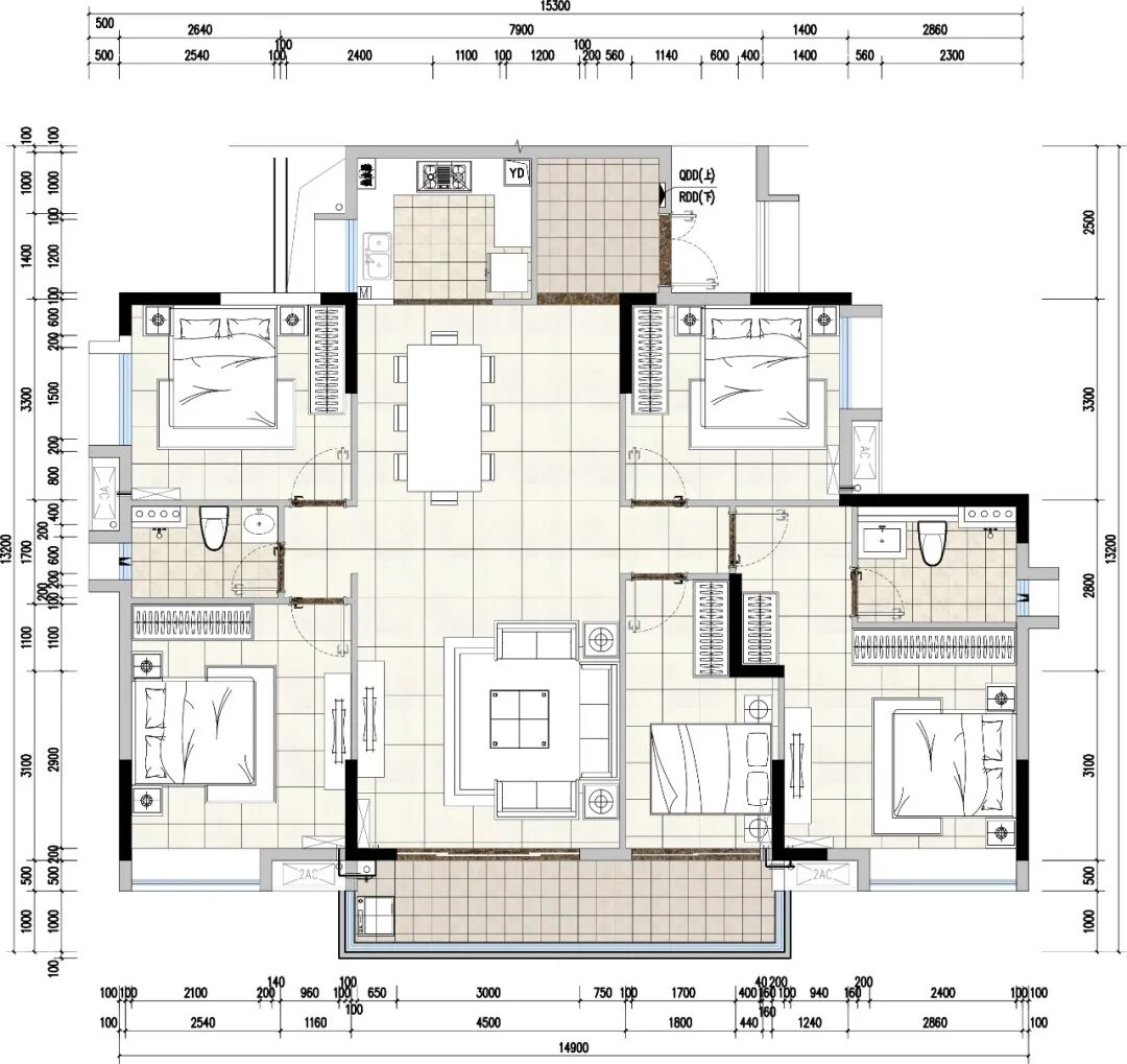
梁丁松对省住建厅、市住建局的指导、对花都区领导的支持、对广东省机场集团及回迁群众的信任表示感谢。梁丁松表示,中建四局高度重视白云机场三期(龙口-小布)安置区建设,以高质量、严要求,保质保量地完成每一道工序。以此次样板社区展示为契机,中建四局将持续以匠心完成后续工程,持续秉持精诚善建精神,以匠心得民心,建设村民“放心房”。 周铁峰表示,机场三期扩建工程是广州市落实《粤港澳大湾区发展规划纲要》,重点实施的国家重大建设项目。机场项目一期工程于去年6月28日成功开工。截至目前,在建的三个安置区项目封顶塔楼数量已顺利突破40栋。今天的开放活动,是建设阶段性成果的一次集中展示,也是向当地百姓交上的第一份答卷。 姚汉钟对样板社区顺利开放表示祝贺,表示白云机场三期安置区顺利实现样板开放是在市委、市政府的强有力领导下,在省、市住建局的大力支持下,以及在花都区委、区政府、广州机场建投集团、中建四局、镇街和村民的多方合力配合下取得的成果。各参建单位要紧密配合,保质保量、稳步推进,打造精品工程。 齐怀恩表示,样板社区是一扇窗口,全面展示安置区的建设品质,兑现对广大回迁村民们的承诺。样板社区也是与安置群众之间的一道沟通桥梁,要借此机会加强与安置村民的沟通,用心解决好安置村民“急难愁盼”的问题。安置区建设任重而道远,希望各参建单位要始终坚持“以人民为中心”,继续发挥职能作用,密切配合,展现能吃苦、能战斗的精神风采,高质高效推进安置区建设,共同把机场三期项目打造为百姓满意的品质工程、民心工程。 项目简介 白云机场三期扩建工程,是广州落实《粤港澳大湾区发展规划纲要》“建设世界级机场群”要求的国家重点交通枢纽工程,其征拆安置范围涉及白云区、花都区、天河区3个行政区、9个街(镇),总面积约34.28平方公里,动迁村民6.2万。由中建四局承建的白云机场三期(龙口-小布)安置区项目作为大型社区式的重点民生工程,关系到回迁群众的切身利益,对后续机场三期扩建工程具有重要意义,也为后续征地拆迁起到正向引导作用。 ★ 助力世界级机场群建设 ★ 样板社区实现三个“首次” 2020年6月28日 安置区启动区动工建设 开创了全国安置区 早于主体工程建设的先例 本次开放的样板社区 是白云机场三期扩建工程 首个建设的安置区 首个主体结构封顶 首个开放的样板社区 2020年12月31日 龙口—小布安置区首批安置房封顶 顺利实现 “当年立项、当年开工、当年封顶” ★ 匠心打造回迁村民”安心房“ ★ 美丽“新家”抢先看 干净整洁的小区 崭新的楼房 参观人员对社区不绝口 “看到这么漂亮的安置房 我的心情很激动的 安置房户型从两房到五房 贴合我们不同的需求” 回迁村民李姐开心说道 群众的“满意之声”折射出了 中建四局在项目建设上的用心 本次开放的样板社区 开放内容包括样板房 外立面两部分 其中样板房均设置在 2号楼三层,面积分别是 140平方米、110平方米、65平方米的 B户型样板房 △140平方米户型图 安置房在户型设计上 总体遵循 动静分区、功能合理 设计原则 强调居住空间的 舒适性、实用性、适应性 ★ 安置安心,用新更用心 ★ 科技与人文构建和谐社区 样板社区总体规划理念为 “现代岭南,山水人家” 因地制宜利用周边地形地貌 力求整体规划与周边山水相融 传承岭南地域文化特色 营造舒适生态的岭南山水住区 为提高项目建造标准化 确保建设质量 项目还引入先进的装配式建筑 安置区启动区装配率超过55% 项目养老院地块 采用“ PPEFF 体系”建造 是省内首个“PPEFF体系”示范工程 也是全国目前已建“PPEFF 体系” 项目中面积最大的工程 从一纸蓝图到大境初呈 从一片荒地到幸??占?/p> 中建四局一公司 用心打造精品工程 助力回迁村民 早日实现安居梦 精诚有爱 “筑”梦不止 素材来源 | 广州分公司
空间紧凑、洁污分离
下一资讯:观点分享丨被动式超低能耗装配式建筑设计难点与解决思路
上一资讯:行业资讯丨我省发布相关建材产品价格情况
观点分享丨被动式超低能耗装配式建筑设计难点与解决思路 (2022-01-21)
项目信息丨深圳地铁首座装配式车站完成首环拼装 (2022-01-21)
年终盘点 | 中国及广东省装配式建筑2021年政策动向回顾 (2022-02-14)
行业资讯丨我省发布相关建材产品价格情况 (2022-01-21)
国际视点丨10项可改变世界的建筑技术 距离我们还有多远? (2022-01-21)
项目信息丨国内首个标准层全面运用装配式IRF体系建筑封顶 (2021-11-26)
