广东装配式建筑分会 2020-11-06 3243
①
|概念规划设计阶段成本控制|
?
在投资阶段,对于山地项目,可通过竖向分析及边坡处理,考虑将不可利用的陡坡用地划出用地红线,以控制土方成本。
根据国家建设用地竖向标准,坡度大于25%的地区不适宜进行开发,而通常作为森林保育用地或景观用地,但通常在实际操作中坡度大于35%,为不宜建设用地,建议划出用地红线。
②
|详细规划设计阶段成本控制|
?
某拟拓展山地项目占地1200亩,高差达100米。
方案一:方案使用坡地别墅,并尽量利用红线内坡度较小的区域,使项目的土方量尽量小。
方案二:方案使用平地别墅,尽量利用红线内用地和红线外放坡,项目土方量较大。
土方成本控制也应结合销售要求权衡考虑
开平十一期原方案充分尊重地形,以土方成本最少为优先原则规划,则使别墅间高差达4~5m,影响去化。调整后方案,以“快去化”为导则,尽量将两排别墅间的高差控制在1.5m,土方成本增加,但有利于项目更快更好得去化。
控制展示区规模
在规划前期阶段,应根据项目规模的大小合理控制综合楼展示区的规模,降低前期投入的成本,也有利于项目的快速开发。
案例6:
前后楼夹角控制
前后楼间距控制
住宅间的拼接关系
(三)地下室成本控制
车位比与地面停车率
在规划前期阶段,投资拓展部应向当地政府或有关部门争取最小的车位比不最大的地面停车率,以减少地下车库面积。对一些地价低,高层市场一般,车位售价低且去化难的项目(如雷州),可考虑实行100%地面停车,不设地下车库,以最大限度的省去地下车库建设成本。
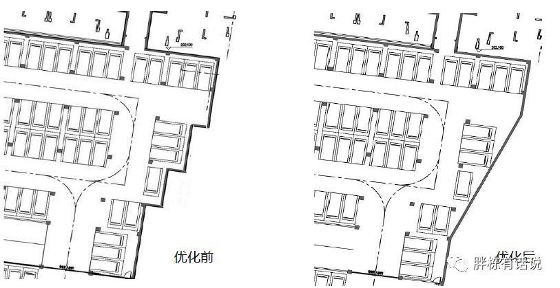
合理的车库边界
地下车库设计时,应使车库边界尽量拉直、规整,避免因边界的拐角导致的成本增加。
个别项目车位配置紧张,需考虑利用车库边角位等丌好利用的区域设置微型车位,而微型车位不标准车位的折算关系需不规划局明确,一般是按个数0.7倍折算。
(四)其他成本控制
架空层设置
架空层可以增加景观的通透性,给地面活动人群增加舒适度,同时可作为泛会所,增加销售的卖点;但架空层建安成本一般较高,且又不能销售,为节省项目成本,需减少架空层的设置;建议地块外围洋房不做架空,地块中部可考虑架空以加强景观空间通透性。
支护成本控制
层高成本
胖栋有话说 整理
技术推介 | 铝模施工的9个常见问题,注意防治! (2020-11-10)
行业资讯│最新!全国装配式建筑新政汇总 (2020-11-18)
项目信息│合景泰富48.6亿拿下天河牛奶厂宅地,装配式建筑面积不低于70% (2020-11-18)
行业资讯丨再迎利好!全国各地力推绿色装配式建筑 (2020-11-02)
行业资讯丨为什么当下是进军装配式装修最好的时间点? (2020-10-30)
项目信息│广州市56.05亿元挂牌4宗地块,须做装配式 (2020-10-30)
